@宝山的小伙伴们
看过来!
可容纳824户居民
机动车停车位947辆
……
宝山这里新建住宅
项目设计方案正在公示

依据《上海市建设工程设计方案规划公示规定》的要求,由上海市宝山区规划和自然资源局监督,宝山区顾村大型居住社区BSP0-0104单元0414-02、0415-01地块项目设计方案正在进行公示,敬请关注。


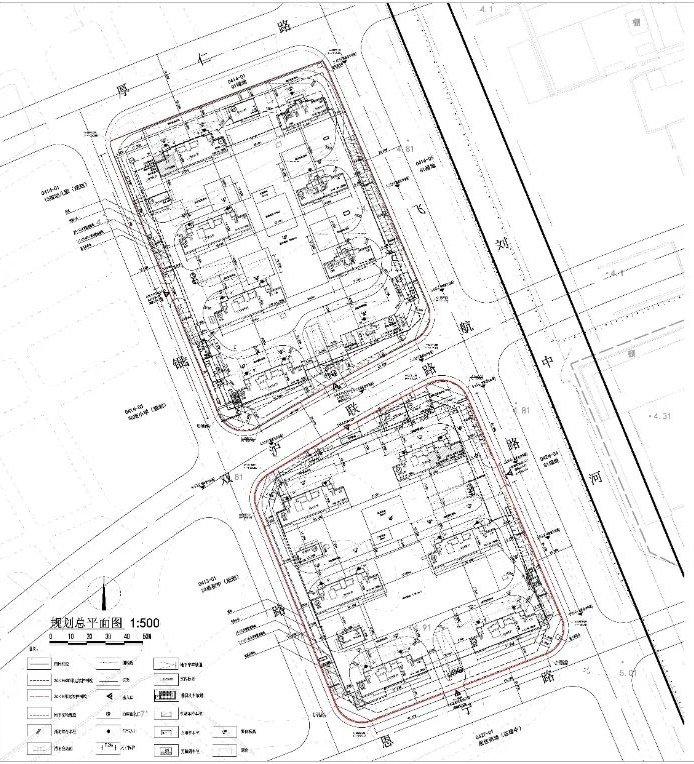
宝山区顾村大型居住社区BSP0-0104单元0414-02、0415-01地块项目设计方案

该项目东至飞航路,南至恩宁路,西至银双路,北至厚仁路。
0415-01和0415-02地块用地面积39642.4平方米,总建筑面积121340.56平方米,总户数824户,设有机动车停车位947辆,非机动车停车位765辆。



公示网站:宝山区人民政府门户网站
公示现场地点:顾村镇项目现场
公示期限:2022年10月19日至2022年10月28日
收集意见截止期:2022年11月4日
意见反馈途径:
(1)信函方式:上海市宝山区规划和自然资源局
通讯地址:宝山区宝林路45号105室
邮政编码:201999
电子信箱:fangangongshi@163.com(邮件名称、主题中应标明公示名称)
(2)信函方式:上海市宝山区顾村镇人民政府
通讯地址:上海市宝山区泰和西路3431号
联系电话:021-36190028
电子信箱:snxmb2010@163.com(邮件名称、主题中应标明公示名称)
项目情况咨询:上海保锦润房地产有限公司
联系人:王世祥
联系电话:021-52585038
通讯地址:上海市宝山区顾北东路575弄1-17号
通讯员:张燕娣
编辑:吴赛华
资料:区政府门户网
*转载请注明来自上海宝山官方微信