知识经济时代,人才的重要性尤为突出。近期,位于宝山区真陈路市台路路口的乐城活力社区完成了升级改造,实现了小而全的华丽变身,进一步提升了“软实力”,成为宝山推进人才公寓提标升级的一个缩影。
人才公寓,让青年人才安居
也链接城市未来
什么是理想型的人才公寓?
或许应该拥有这些特质:
装修不用奢华,但要风格时尚
面积不用很大,但小而美、小而全
不只可以舒适居住
还有着更加友好的发展环境

今年,宝山将进一步加大人才公寓房源筹措力度,并酝酿制定“人才公寓设计参考指南”,围绕“人”的居住、生活、发展等多维度需求,给出建设管理标准,引导人才公寓供给实现数量品质“双提升”,更好地吸引优秀人才来宝山加入科创中心主阵地建设,让人才与宝山相互成就。
跟许多怀揣希望的年轻人一样,来自江西的姑娘卉子大学毕业后就在上海打拼。半年前,她到宝山高新园区里的一家新材料研发企业工作。此前,她租住的人才公寓不仅通勤非常不便,居住条件也根本就谈不上舒适,“虽说基本家具都有,卫浴独立,但不合理的空间布局让原本就紧凑的房间没有一点儿家的感觉,更别提公共活动空间了。”

春节前,卉子第一次走进刚开始试运营的乐城活力社区人才公寓就有了“不一般”的感受,堪比星级酒店的入户大堂不仅整洁干净,还融入了书吧、共享会客厅、影音区等多种功能空间。房间内,装修风格时尚且雅致,家具家电一应俱全,就连宠物也被友好以待,可随主人一同入住。正在装修的辅楼,生鲜超市、白领食堂即将建成开放。

“这栋公寓很有设计感,很高端。住在这里,生活品质一下子提升了不少,而且这里离我上班的地方步行也只有10多分钟。”顺理成章地,卉子成了公寓的首批签约住户。下个月,卉子就将搬进乐城活力社区的新家。
有了追逐梦想的资本,也有了更多可自由分配的时间,现在的卉子,觉得离理想更近了一步。

乐城活力社区改造前

乐城活力社区改造前
位于真陈路市台路路口的乐城活力社区,此前曾是园区内一幢空置多年的研发办公楼。近年来宝山转型脚步加快,园区引入大量科技企业及人才,住房需求日益迫切。
最初,这幢楼在改建人才公寓的设计时,相关公司单纯从经济上考虑,试图在允许的范围内分隔出更多的房间。

乐城活力社区最初设计方案中的楼层房间分布
这个想法与宝山区将人才公寓作为吸引、留住人才的思路背道而驰。“改造类的人才公寓在没有相关设计标准的指引下,市场主体考虑效益最大化,会根据自己的判断和标准进行改造。这就导致市场化人才公寓品质参差不齐。”业内人士认为,这些“先天不足”就会引发系列连锁反应,甚至导致诸如人才公寓不适合人才居住,人才公寓成“空房”,人才公寓留不住人才等问题。
只有当“住”成为引才的标配时,人才公寓的投入才会力度不断加大。

充满活力的青年社区
经过区房管局的走访调研,未来人才公寓的“宝山样本”有了雏形:小户型、大空间和全功能,兼顾优化提升人才公寓功能性、性能性和实现工作、生活、社交等方面多重居住需求。
区房管局还结合保障性租赁住房现状,通过对受众客群、分析现有租赁产品优劣势、研究新市场和产业特点等方面进行市场调研分析,从感受性、性能性、舒适性、功能性出发,运用定制化、功能化、复合化、集约等设计手段最大限度地挖掘可利用空间,优化产品户型、公建配套功能,使保障性租赁住房同样能够做到功能齐全、配套齐备。

以此为蓝本,《宝山区人才公寓设计参考指南》应运而生,将为宝山区的人才公寓起到指导实践作用,以此提升宝山人才公寓“质感”和舒适度。
据了解,《宝山区人才公寓设计参考指南》中涵盖户型设计、室内设计(配套家具、整体风格等)、公区设计(大堂、配套、智能化设备、景观、地下车库等)、服务配套(生活配套+发展配套为核心,打造优化公共空间)、其他(数字化、无线网、安保技防系统等)。

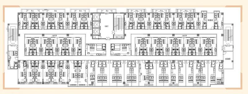
几易其稿,乐城活力社区最终设计方案的楼层房间分布
乐城活力社区就成了首个照此理念进行改建的人才公寓,设计方案推倒重来后,就有了现在活力社区的模样,房间数从600多减少了近一半,达到334套房,有一房、两房等5种房型,面积从28平方米到97平方米不等,满足人才不同的需求。
此外,建设方在前期调研时发现,园区企业管理层或员工入住时,对共享办公、共享会议室有一定需求,于是便将这两大功能空间设置在大堂一块相对独立的区域。

试运营期间,首期投放了68套房。不到半个月,效果就超出了预期,几乎每15个人来看房就有10个人有意向入住。
今年,宝山将新增5000套人才公寓。由区房管局牵头,与规资、建管、人社等部门共同推进人才公寓的提标升级,满足人才从安居到宜居的高品质需求。

未来,宝山提供给人才的社区,是一个青年创新的生态社区,不是只满足于居住,还要尽量提供满足他工作、成长、生活等多方面需求的活力空间,成长空间和梦想空间,由此增强人才对科创宝山的认同感和归属感。
资料:话匣子
编辑:余婧瑶
校对:赵慧敏
*转载请注明来自上海宝山官方微信