用户名:
密 码:
验证码:
看不清
忘记密码?
模糊搜索
作者搜索
标题搜索
正文搜索
摘要搜索
查看新版>>
登录
注册
首页
视频
在场
观观观察局
文汇视讯
文汇艺术
文汇大家聊
文汇馆长说
文汇青年营
潮探007
冲呀花花采访团
魔都三棱镜
汇演
艺见
许蜜桃
我不是唐亿森
速瞰天下
书人茶话
顾问天下
上海时刻
晏秋秋
江江三人行
饭小兔的美学洞窟
Biu比由
文汇科代表
解放日报谢飞君
文汇讲述
新聚场
政情
@康平路
直通200号
伴公汀
上海一周
反腐记
抗战·上海寻迹
交汇点
市政厅
经济
财经连线
产业观察
金融区块链
流量研究所
市场解码
任我行
产经
市场
城生活
财经
城事更新
文化
文旅乐游
文化观澜
文艺清单
文化视点
独家探班
观众席
片场视听
文汇人文之城
台前幕后
文化生活
副刊
新民艺评
朝花时文
海上记忆
上书房
笔会
文汇文艺评论
文汇文艺百家
文汇读书
夜光杯
民生
民声直通车
上海辟谣平台
人民建议
读者
城市的味道
帮侬忙
上海滩
民生调查
侬好上海
谈天
文汇集结号
汇帮忙
区情
浦江眼
前沿风
郊野笔记
上海屋檐下
海上755
区域
Yeah!上海
十六区
郊野大地
评论
观见
时评
文汇时评
文汇微言
新民眼
思想
上观学习
思想汇
学林
论苑
文汇智库
文汇学人
文汇讲堂
深度
纵深
原点
申观察
新民周刊
科创
创新之城
科创前沿
科学新知
科科哒
教卫
教育在线
文汇教育
教育星球
学堂有名堂
医声医事
哎哟不怕
健康生活
第医线
康健园
医本正经聊天室
体育
运动+
文汇体育
新民体育
新民场外音
厉苒苒
东方体育日报
社会
说法
案页
十二公民
新瞰点
新民法谭
新音频
长三角
华东局
江南
城市志
要闻
时政要闻
国内
港澳台
北京来信
山海情
风物
京华传真
国际
世界观
大局观
海外惊奇
文汇环球
国际视点
深海区
侨梁
浩峰说
天下
早读
纵览
时事
话媒堂
上官河
汇闻
新民早报
视觉
图数图说
见识录
大视界
数据洋葱
文汇视觉
图个明白
新民印象
直播
文学报
新批评
文学现场
世界文学
品牌
健面谈
文创+
大区势
企示录
一起来
科创上海
微观上海
车天下
品牌汇
教育汇
文旅在线
新民汇
新民亲选
援疆风采
喀什风情
爱我国防
新民小记者
万象
专题
直播
上观号
电子报
解放日报
文汇报
新民晚报
上海日报
新闻晨报
上海法治报
社区晨报
东方体育日报
文学报
浦东时报
新民周刊
上海宣传通讯
我的位置:
上观号
>
上海嘉定
>
文章详情
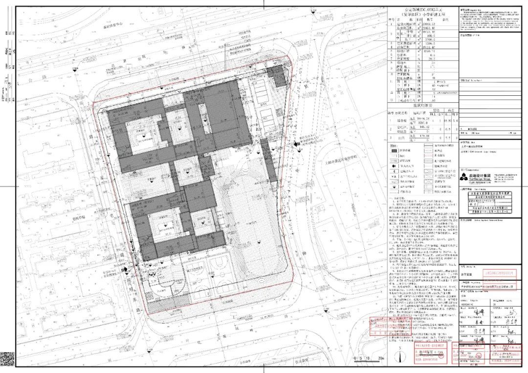
最新!嘉定新城将新建一所学校
转自:
上海嘉定
2025-03-28 16:53:49
@嘉定的小伙伴
嘉定新城将新建一所学校
具体如下↓
建设项目名称
嘉定新城JDC10502单元
(复华园区)小学新建工程
建设单位(个人)
上海市嘉定区教育局
建设位置
东至复华路
南至叶城路
西至翁家宅路(原控规昭苏路)
北至嘉戬公路
建设规模
总建筑面积22491.46平方米
(地上建筑面积19291.46平方米、
地下建筑面积3200平方米)
计容面积19191.46平方米
通讯员:嘉小规
编辑:倪丹丹
喜欢就点个“赞”吧~
↓
↓
↓
↓