
《浦东新区科教园区单元(PDPO0306)
C1B-1地块住宅项目》
设计方案有调整,
一起来看详情↓
上海屿发房地产开发有限公司
建设工程名称
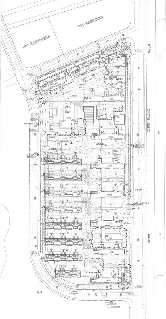
浦东新区科教园区单元(PDPO-0306)C1B-1地块住宅项目
建设项目地址
浦东新区曹路镇,东至华俊路,南至莲彩路,西至霞蔚路,北至文齐路。
调整内容
1.25号垃圾房东侧围墙开门方向调整,11号住宅楼西南角围墙开门;
2.14号P站位置调整;
3.取消21号楼配套用房北侧构筑物,调整地下配套用房出地面楼电梯平面位置,西侧构筑物形式调整;
4.26号垃圾房位置调整;
5.根据图纸深化,总图表达出地面楼梯、风井等构筑物;
6.根据景观优化设计,调整总图路形,调整绿化布置;
7.2号住宅楼西南侧围墙上增加消防紧急开口;
8.9号住宅楼西南侧增加一条4米的消防车道和南侧消防车道联通,10号住宅楼西南角做一个消防回车场,15mx15m;
9.5号住宅楼南侧增加景观构架;
10.5号住宅楼东南侧地面停车位取消;
11.儿童活动场地位置调整;
12.建筑单体屋顶深化表达,门头造型调整;
13.调整地下室轮廓线

主要经济技术指标:
用地面积:47645.54平方米
总建筑面积:114425.66平方米
其中地上建筑面积:77118.08平方米
地下建筑面积:37307.58平方米
容积率:1.5
绿地绿:35.0%
建筑高度:40米
注:
1.方案中场地范围内地下室风井、楼梯、景观构架、格栅、采光窗均以相关部门最终审批为准。
2.本次公示范围仅限建设用地红线范围内相关建设内容,用地红线范围外内容仅为图示。
意见反馈
公示期限:2024年8月23日至9月1日
反馈意见截止日期:2024年9月8日,(信函以寄出邮戳时间为准)。
采取网上和现场同步公示的方式。
公示网址:http://www.pudong.gov.cn/gtj/,
现场公示地址:霞蔚路/文齐路路口;
浦东新区上川路1639号,曹路镇人民政府
本次公示采取书面信函或电子邮件方式听取公众意见,反馈意见的信函请寄:浦东新区新金桥路27号14#楼,上海金桥经济技术开发区管委会行政审批服务处(挂号信除外),邮编:201206;电子邮件地址:jqspc@pudong.gov.cn。请在信函封面或邮件名称上注明“项目方案公示意见”。也可到项目所在地相关镇、街道反映。