
惠南镇东南社区PDS3-0210单元17-01地块
配套幼儿园新建工程
规划设计方案正在公示,
一起来看详情↓

建设工程名称
惠南镇东南社区PDS3-0210单元17-01地块配套幼儿园新建工程
建设单位
上海市浦东新区惠南镇人民政府
用地范围
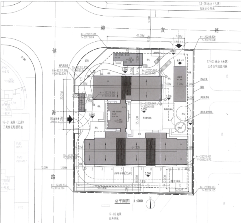
项目基地处于上海市浦东新区惠南镇范围内,东至17-03地块,西至健海路,南至17-02地块,北至迎友路。
建设用地性质
幼托用地
建设工程性质
幼儿园
主要经济技术指标
用地面积:6706.2㎡
总建筑面积:9306.34㎡
其中
地上建筑面积:6346.54㎡
地下建筑面积:2959.80㎡
容积率:0.94
建筑密度:34.09%
绿地率:35%

意见反馈
反馈意见截止日期:2024年5月27日,信件以寄出邮戳为准。
公示采取网上和现场同步公示的方式
现场公示地址:项目建设基地现场围墙等附近
公示网址:www.pudong.gov.cn/gtj
本次公示采取书面信函方式听取公众意见,收集意见的信函请寄:浦东新区锦安东路475号新区规划和自然资源局,邮编201204,请在信函封面上注明“惠南镇东南社区PDS3-0210单元17-01地块配套幼儿园新建工程方案公示意见”。也可到项目所在地惠南镇反映。