看坊斗拱、方胜纹样
门楣镌刻、木雕窗花
如今,古色古香的庞家南荫堂
唤醒了沉睡的历史
重新拥有了属于它的新的使命
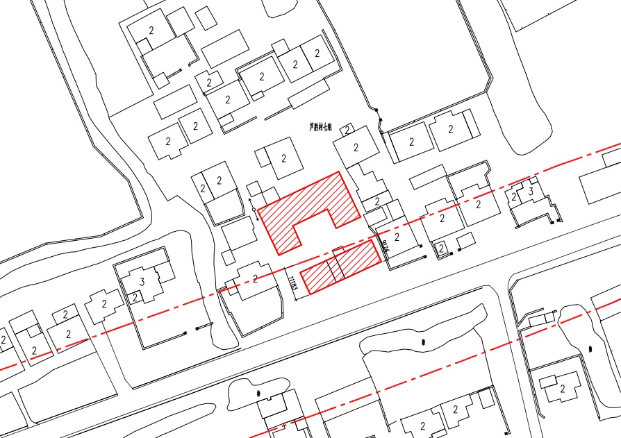
庞家南荫堂
(芦胜村7组)

有人说,能代表上海特色的房子,除了石库门,还有“绞圈房子”这种本地民居,而在浦锦街道,就有这么一处焕发“新生”的“绞圈房子”。
作为闵行文物保护点,庞家南荫堂是上海为数不多的绞圈房。南荫堂建于清光绪三十二年(1906年),作为传统上海民居已有百余年历史。

因银都路越江隧道新建工程,浦锦街道启动了庞家南荫堂文保点平移保护项目,为市政重大工程提供必要条件的同时,合理保护修缮文物。
-请点击走进保护修缮后的庞家南荫堂-

建筑是生动的史书,是比文字更真实更直观的历史。
走进这座被时光眷顾留恋的砖木结构建筑,踏过门槛,似曾相识的韵味犹存,置身其中,依稀感觉时间都慢了些。整体木作,瓦木坡顶,环顾四下,庞家南荫堂是坐北朝南的一座七开间的绞圈房子,比常见的绞圈房子更大,而同类型绞圈房子上海留存较少,其庭心比常见的“一绞圈”更大。庞家南荫堂围绕庭心而建,成一种合院式民居。

俯瞰庞家南荫堂,两埭为歇山顶,厢房以双坡屋面连接两埭;次间与梢间的承重墙体处屋面设有一道垂脊;梢间与尽间的承重墙体处设有歇山顶的垂脊,歇山顶山花处为白色抹灰。
古制的建筑,即使是外立面,也尽显岁月的沧桑。虽然瓦片经过翻修,但屋面上的瓦作装饰为历史原物,具有较高的历史价值。



抬起头,客堂外立面转轴,是记忆中小时候长辈家屋檐下的模样,还有那镂花横窗,无论是木质的色彩还是中式流畅的线条,都给人一种宁静致远的感觉。
庞家南荫堂为传统木构建筑,存木梁、木柱,均为历史原物。客堂间木作均有雕花,看枋上雕花人物众多,其中还有七人舞龙的形象;脊檩上由铁艺方胜纹样配平生三级图案,还有“五子登科状元及第”字样,反应了当时社会的工匠技艺。



为原汁原味地保留庞家南荫堂的历史,街道聘请专业建筑设计事务所制定了文物保护点平移保护工程整体方案,经相关专家集体研究通过,向西北平移并平行于规划红线。


-平移前-

-平移后-
庞家南荫堂通过保护性修缮,取得了焕然一新的效果,今后还可在保护好建筑的同时植入新的功能,后期将结合浦锦民俗文化公园延续历史保护建筑的生命力、激活场地,使之成为一个复合功能的城市广场——既是市民文化的户外推广载体,也是市民公共休憩、玩乐的场所。提升城市环境品质的同时,留住了乡愁。

编辑:赵若楠
供稿:朴锦